• + Projects
  • territorial edge and beyond
  • city through the dead
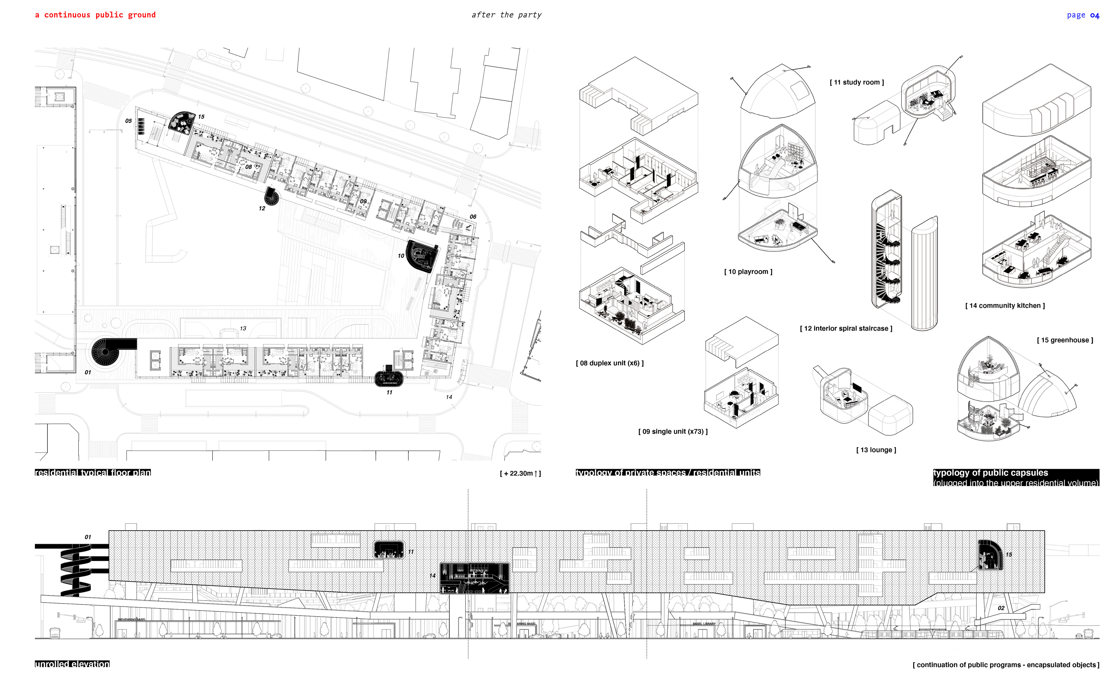
  • a continuous public ground
  • health care on the move
  • inside out
  • pushing / pulling
  • a conversation in-between
  • under one roof
  • re-stitch
  • more options
  • other works
  • + Photography
  • periphery on periphery
  • desert incubators
  • september
  • yellow
  • 45 days
  • laundromats
  • journeys
  • under construction
  • grains
  • + Books
  • life above the dead wip
  • laundromats / society
  • a mail to tokyo
  • circles / cities
  • "the architecture dictionary"
  • contingency
  • what are you looking for?
  • + About
  • Information
Bingkun Deng
  • + Projects
  • territorial edge and beyond
  • city through the dead
  • a continuous public ground
  • health care on the move
  • inside out
  • pushing / pulling
  • a conversation in-between
  • under one roof
  • re-stitch
  • more options
  • other works
  • + Photography
  • periphery on periphery
  • desert incubators
  • september
  • yellow
  • 45 days
  • laundromats
  • journeys
  • under construction
  • grains
  • + Books
  • life above the dead wip
  • laundromats / society
  • a mail to tokyo
  • circles / cities
  • "the architecture dictionary"
  • contingency
  • what are you looking for?
  • + About
  • Information

a continuous public ground

after the party

↑Back to Top
Copyright © 2021 Siying Han